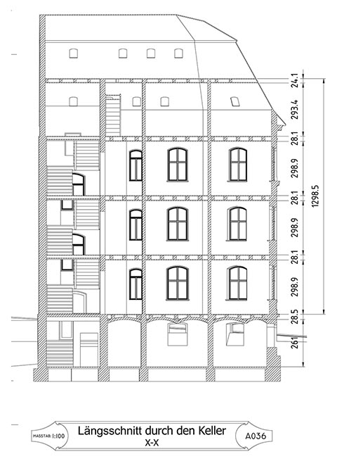
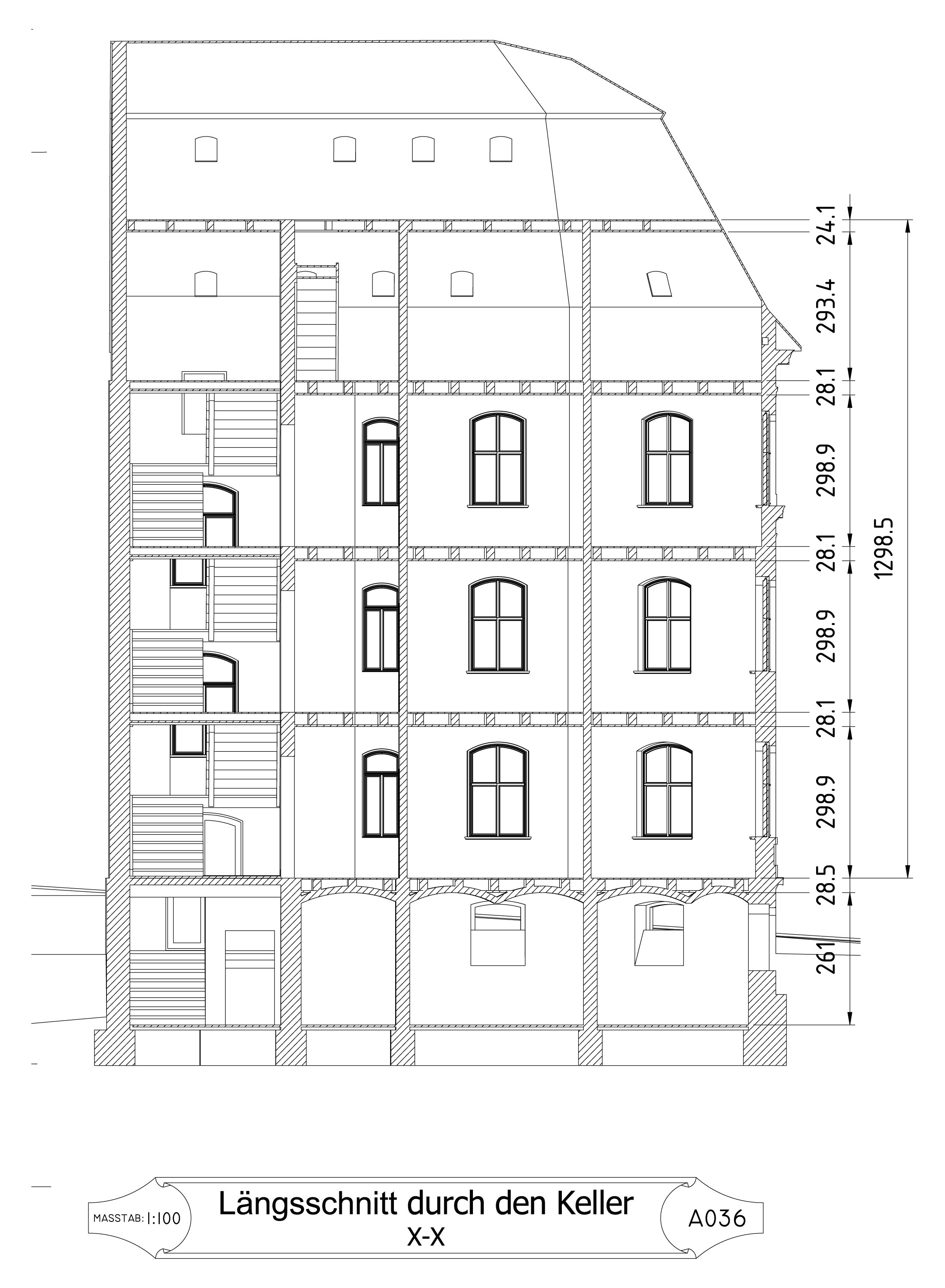
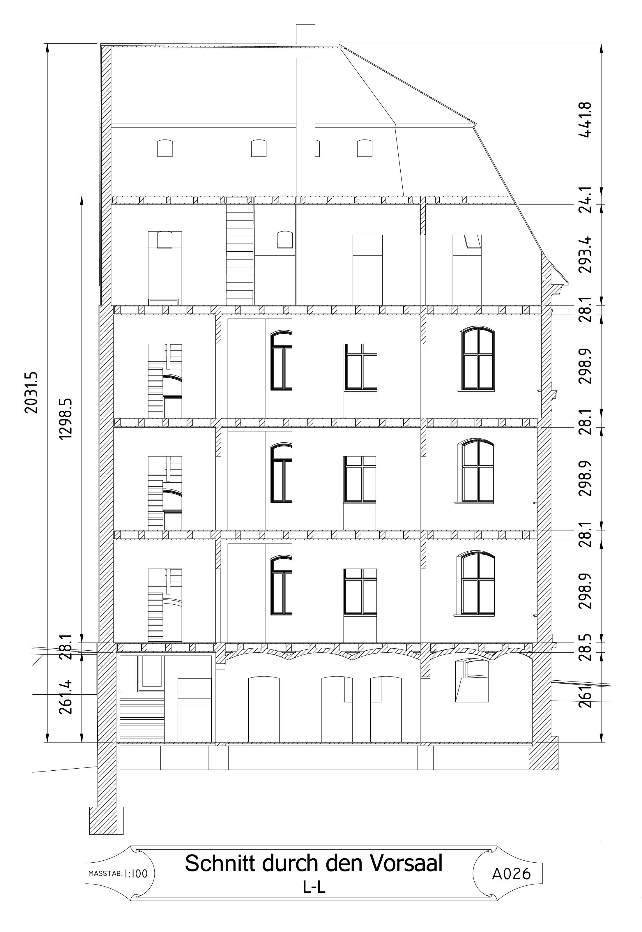
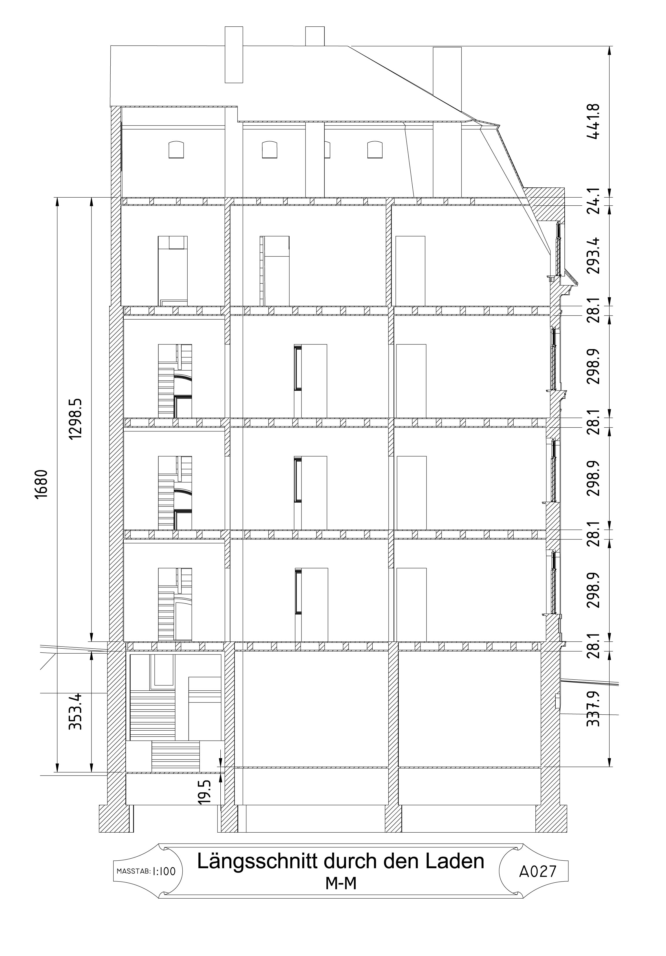
Восстановление актов
Утерянные акты постройки я восстанавливал сам. Чтобы изучить сотояние дома на 1894 год, в некоторых местах нужно было удалить штукатурку или обои, изучить качество стен, окон, кирпичную кладку. После чего промерил всё изнутри и занялся чертежами.




















